Construction works of the Vestas Warehouse at New Haven Industrial Park

Who is the client in this project?

Vestas Benelux B.V. (Vestas Curaçao)

Vestas Curaçao is part of the island’s wind energy sector. Vestas is a globally operating company specializing in the development, production, and maintenance of wind turbines. On Curaçao, the company operates under the name Vestas Benelux B.V. (Vestas Curaçao), registered with the Chamber of Commerce. Their activities on the island focus on the management and servicing of wind energy installations.

We were given the opportunity to construct both the office and the warehouse for this client. Before the start of the project, the warehouse was completely cleared out by the client, allowing us to begin the preparatory work immediately.

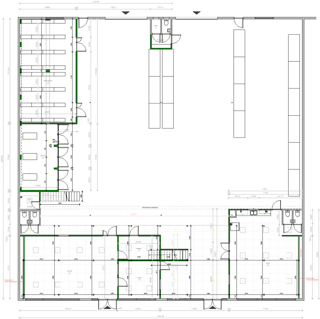
The drawing/floor plan below shows the proposed layout of the spaces. After completing the design phase and the tendering process with third-party contractors, the project was ready to move into the execution stage.

Ground floor

First floor

Before

After

The intention for this construction was to use a partition wall system, allowing the creation of flexible and easily adjustable interior spaces. All office walls were finished with gypsum board and insulated using Owens Corning PINK Next Gen Fiberglass R‑13 Kraft (3‑1/2 in., 23×93 in.). This insulation was essential to prevent sound transmission between rooms and to maintain proper cooling within the office areas. The walls were completed to a high professional standard.

The cooled area (a 24/7 climate‑controlled space) required a different structural approach. This section had to be built using concrete masonry blocks to support a reinforced concrete slab above, which would serve as an additional storage level for the company. For this purpose, 6‑inch concrete blocks were used, combined with cast‑in‑place concrete columns and a Superfloor system installed on top. (See cooled area photos.)

In addition, based on the structural engineer’s calculations and recommendations, an IPE‑270 steel beam was installed between the spaces to provide additional load‑bearing capacity. This reinforcement was necessary to ensure that the upper storage area could safely support heavy wind turbine components.

This elevated storage area is crucial for the client and therefore required a solid, durable, and well‑engineered structural solution.

As part of the ground‑floor finishing, 60×60 cm floor tiles were installed. This presented a challenge due to the uneven condition of the existing warehouse floor. Despite this, the installation was successfully completed, resulting in a clean, durable, and professionally finished tiled surface.

Let Us Take Care Of You

Kitchen

The kitchen was installed by a third-party contractor who collaborated closely with our team. We are proud of the high‑quality and refined finish achieved in this kitchen.

Offices

Construction

The project started on September 4th, 2025 and was completed on February 28th, 2026.

Cooled Area - Generator room

The cooled area (a 24/7 climate‑controlled space) required a different structural approach. This section had to be built using concrete masonry blocks to support a reinforced concrete slab above, which would serve as an additional storage level for the company. For this purpose, 6‑inch concrete blocks were used, combined with cast‑in‑place concrete columns and a Superfloor system installed on top.